| 弘前市 貸家のご案内 |
| (有)みやの不動産 | (社)全日本不動産協会会員 036-8204 弘前市大字本町69 TEL0172-32-6067 |
|
|
|
||
| | TOP | 売買一覧 | 会社概要 |問合わせ| サイトマップ|
|
||
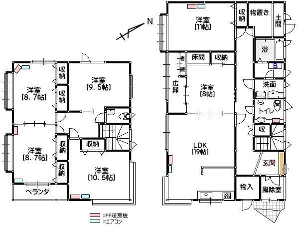
| タイプ別→ | 2LDK-3LDK | 貸 家 | ||||
|---|---|---|---|---|---|---|
| 貸家名称 シャトレ−ゼ松原 |
| 貸家住所 弘前市大字松原東1丁目13−6 | 交通:弘南バス松原停まで520m | ||||||
| 構造 | 木造2階建 | 棟号 | ・・・・・・・・・・・・・・・ | 賃料 | ¥75,000円 | 敷金 | ¥150,000円 |
| 床面積 | 210.18u [63.57坪] |
間取 | 6LDK | 共益費 | 無 | 借主負担 | フィルタ−掃除 ・FF暖房機 =¥3,000円/1台 ・エアコン清掃 =¥5.000円/1台 [但、2年毎] |
| 築年 | H4年7月新築 R5年8月改修 |
駐車場 | 青空4台 | 駐車料 | 賃料に含む | ||
| 入居 | 入居可 | ガス種 | LPG | 火災 保険 |
要加入 | 仲介料 | ¥82,500円 |
| 備付設備; 浴室(追い炊き)、トイレ×2、給湯ボイラ−(灯油)、エアコン×5機、FF暖房機×6台 |
| シャトレ−ゼ松原 | 間取:6LDK | ||
![]() |
|||
![]() |
![]() |
![]() |
|
![]() |
![]() |
![]() |
![]() |
![]() |
![]() |
| |■会社概要|■個人情報|■ご利用に当たって|■売買一覧| | ↑ペ−ジ先頭へ |
| (有)みやの不動産 〒036-8203 弘前市大字本町69 TEL0172-32-6067 | |